NHÀ MAI YÊN
TRUNG KIÊN / VĨNH PHÚC

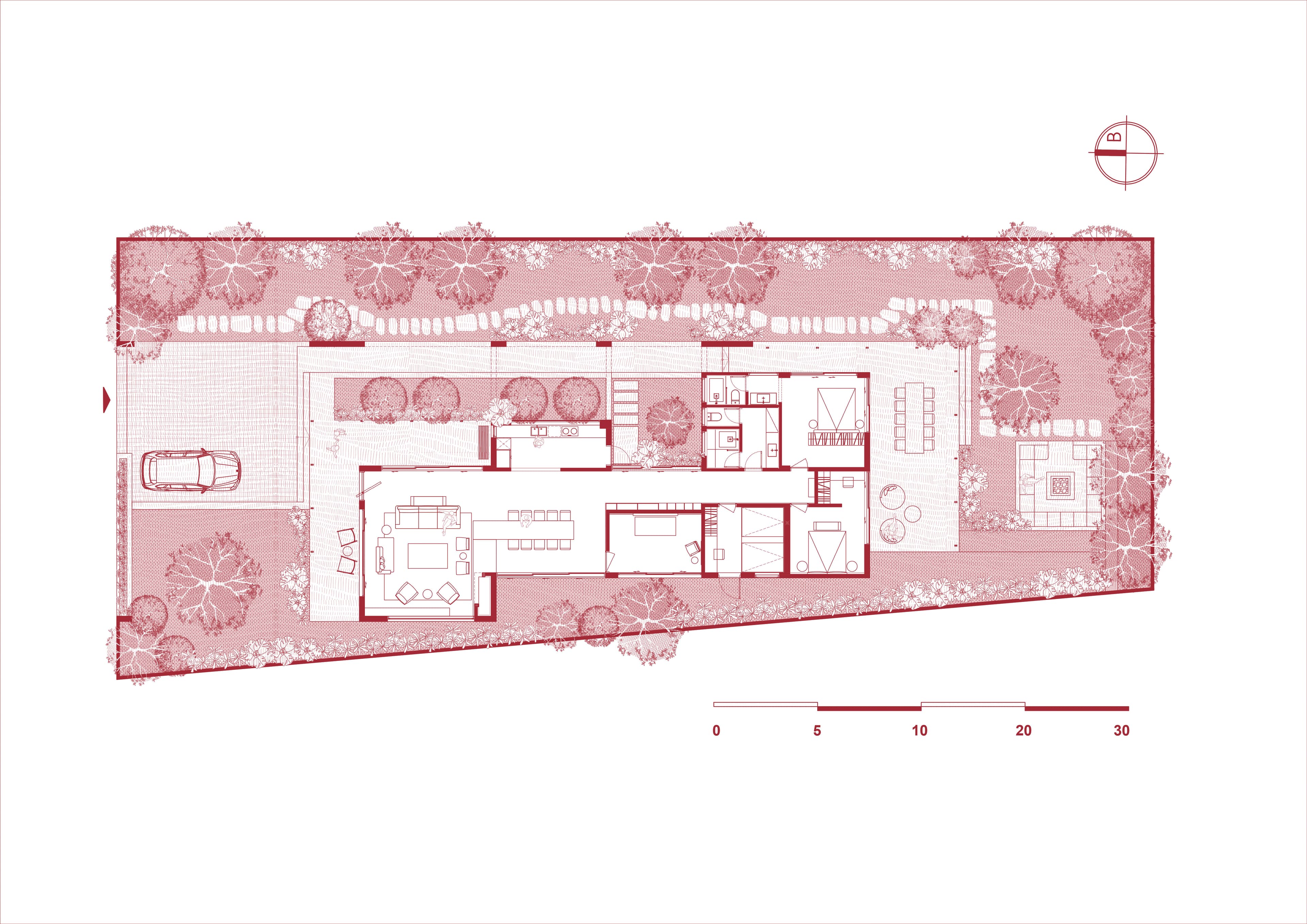
Mai Yên là căn nhà nghỉ dưỡng cuối tuần cho ba thế hệ, trên khu đất nằm bên ven sông Cà Lồ ( một nhánh của sông Hồng). Mục tiêu của công trình là tạo ra không gian sống thoáng đãng, nhiều ánh sáng và cây xanh, nhưng vẫn đảm bảo sự riêng tư và tiện nghi cho sinh hoạt hàng ngày.
Cấu trúc nhà được phát triển theo chiều dọc, áp về một phía khu đất và để trống phần diện tích còn lại cho hệ sân vườn cảnh quan, vừa tạo ra sự riêng tư khi không tiếp xúc với đường giao thông, vừa lấy được hướng gió mát thổi qua sông vào nhà.
Với tổ hợp công năng gồm ba phòng ngủ, một không gian sinh hoạt chung, ý đồ thiết kế của kiến trúc sư mong muốn tạo ra các không gian ấn tượng về chiều cao, thể hiện sự thoáng đãng không gò bó, hệ trần nhà vát chéo đan xen tạo điểm nhấn về mặt thị giác, việc đặt các diện cửa sổ lớn có tính toán đối lưu giúp toàn bộ căn nhà luôn thoáng mát, các không gian chức năng đều có thể tiếp cận được nguồn ánh sáng tự nhiên và view nhìn cảnh quan sân vườn.







DIỆN TÍCH
250M2
TIẾN ĐỘ
HOÀN THÀNH 2024
LOẠI DỰ ÁN
NHÀ Ở
THIẾT KẾ
ĐẶNG NGỌC KHÁNH
PHẠM CAO CHỨC
NGUYỄN HỮU CƯỜNG
MAI QUỐC HƯNG
NHIẾP ẢNH
TRIỆU CHIẾN